Bilocale in vendita

Cervia, Viale dei Gemelli - Tagliata
€ 158.000
2 locali 2 locali
57 Mq 57 Mq
1 bagno 1 bagno

Bilocale in vendita

Cervia, Viale dei Gemelli - Tagliata

Descrizione annuncio

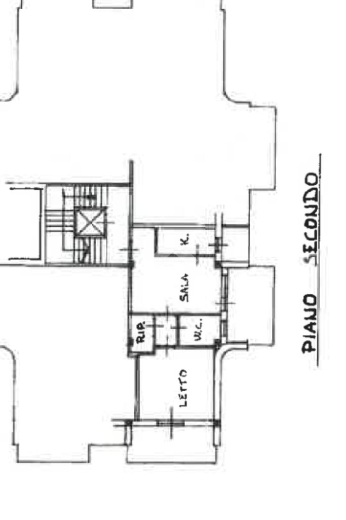
TAGLIATA

Vicino al mare e alla Pineta, appartamento bilocale al secondo piano servito da ascensore.

La soluzione si compone di luminoso soggiorno e cucinotto, serviti entrambi da un comodo balcone, uno dei quali abitabile . Proseguendo verso la zona notte, un bagno finestrato ed una camera da letto matrimoniale anch'essa servita da ampio balcone.

Esternamente sono presenti numerosi parcheggi liberi ad uso gratuito.

La soluzione è ideale come seconda casa, ideale per le vacanze estive, oppure come investimento.

Per maggiori informazioni chiama 0544.986427 - 349.6907606 oppure manda una mail a rahe1

Mostra tutto

Nelle vicinanze

Trasporto pubblico Trasporto pubblico
stazione di Cesenatico
stazione di Cesenatico
2,8 Km
Bivio Zadina Camping
Bivio Zadina Camping
1,2 Km
Cesenatico Mazzini Cavour
Cesenatico Mazzini Cavour
2,1 Km
Ricariche auto elettriche Ricariche auto elettriche
Cervia Piazzale Val d'Isère | EnelX
1,5 Km
Cervia Montale | EnelX
2,3 Km
Scuole Scuole
Scuola Primaria Statale "A. Manzi"
260 m
Scuola Primaria "Leonardo Da Vinci"
2,4 Km
Farmacia Farmacia
Farmacia
430 m
Farmacia San Pietro
2,3 Km
Farmacia Comunale n.1
2,3 Km
Parafarmacia internazionale
2,8 Km
Supermercati Supermercati
Crai
280 m
Conad
2,3 Km
Conad Pinarella
2,5 Km
Famila
2,5 Km
Eurospin
2,6 Km
Negozi Negozi
Negozi
390 m
Sandra Shopping
2,8 Km
Street & sport
2,8 Km
Bar Bar
bagno vega
380 m
Bar Pasticceria Ketty
610 m
Al KM175
640 m
Fuorionda Piadina
2,0 Km
Nuovo fiore
2,5 Km
Ristoranti Ristoranti
bagno vega
380 m
Dal Pescatore rist. pizz.
410 m
Bar Pizzeria Ristorante Gabbiano
510 m
Kiosko Beach Piadina e Crescioni
630 m
Ristoranti
700 m
Mostra tutto

Caratteristiche

Rif.:
61053517
Piano:
2 di 5 con ascensore (Piano medio)
Balconi:
3
Camere da letto:
1
Arredamento:
Completo
Condizionamento:
Assente
Mostra tutto
Prezzo Prezzo
€ 158.000
Rata mutuo Rata mutuo
€ 728 / mese
Spese annue Spese annue
€ 600
Proponi il tuo prezzoProponi il tuo prezzo

Classe Energetica

G
G
G
G
G
G
G
G
G
EP globale non rinnovabile:
138.33 kW h/m² anno
EP globale rinnovabile:
1.86 kW h/m² anno
EP invernale del fabbricato:
EP estiva del fabbricato:
Anno di costruzione:
1980
Riscaldamento:
Autonomo
Tipo impianto:
A radiatori
Tipo alimentazione:
Metano

Ti interessa visionare l'immobile?

Fissa un appuntamento  Fissa un appuntamento

Richiedi informazioni

* Questi campi sono obbligatori

Calcola il tuo mutuo

Semplice e senza impegno
Anticipo

( % )
Mutuo

( % )

pochi semplici passi

inserisci i tuoi dati
Questionario completato
Grazie per aver richiesto un appuntamento senza impegno con un nostro Consulente del Credito e Assicurativo.

Hai inserito correttamente tutti i dati necessari e a breve riceverai una e-mail con un link da convalidare per inviare i tuoi dati.
Affiliato
Studio Cervia Srl
Via Tritone, 11 48015 Cervia (RA)

Il nostro staff


  • Giovanni Facchinetti
    Affiliato

  • Francesco Baldisserri
    Affiliato

  • Alberto Cantoni
    Collaboratore

  • Matteo Di Marco
    Collaboratore

  • Adnana Mariuca Lazar
    Coordinatrice

  • Lorenzo Milzoni
    Collaboratore

  • Teodora Mustetanu
    Collaboratrice
Via Tritone, 11 48015 Cervia (RA)
Zona: Pinarella-Cervia-Tagliata
Mostra su mappa
Orari: Lunedì - Venerdì 09.00/13.00 - 15.00/19.30; Sabato 09.00/13.00 - 15.00/18.30; Domenica e festivi su appuntamento.
Affiliato
Studio Cervia Srl
Via Tritone, 11 48015 Cervia (RA)

2025 Tecnocasa Franchising S.p.A. - P. IVA 08365160152 - Via Monte Bianco 60/A 20089 Rozzano (MI). Ogni agenzia ha un proprio titolare ed è autonoma. Privacy policy | Policy utilizzo | Cookie policy