Trilocale in vendita

Cervia, Via Caduti per la Libertà - Pinarella
€ 350.000
3 locali 3 locali
92 Mq 92 Mq
2 bagni 2 bagni

Trilocale in vendita

Cervia, Via Caduti per la Libertà - Pinarella

Descrizione annuncio

PINARELLA

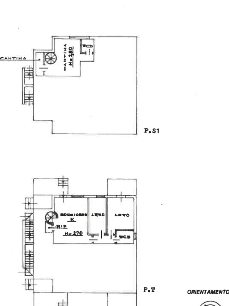
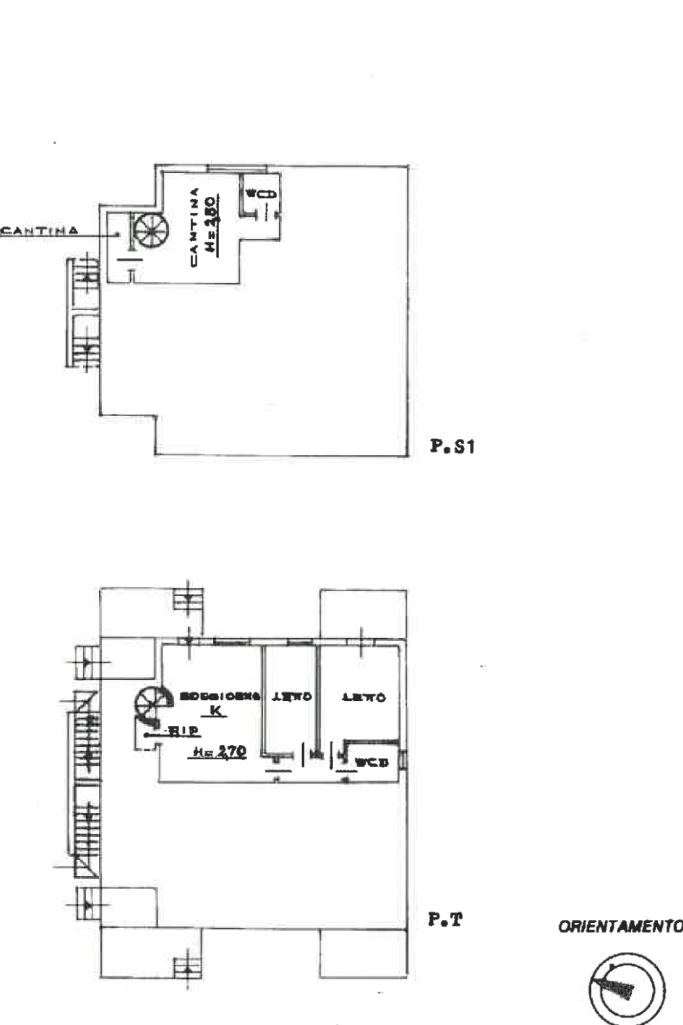
Tra Cervia e Pinarella, proponiamo in vendita appartamento di 92 mq situato al piano terra di una costruzione del 1998.

L'immobile, offre un ingresso indipendente che conduce ad un accogliente soggiorno con angolo cottura. La zona notte comprende una camera matrimoniale ed una camera singola, entrambe servite da un bagno.

Un ulteriore vantaggio è rappresentato dalla cantina servita da bagno, facilmente accessibile tramite una scala interna, ideale per chi necessita di spazio aggiuntivo per lo stoccaggio. All'esterno, un giardino privato offre un angolo di tranquillità e svago.

Completa la proprietà un comodo garage, perfetto per il parcheggio o come ulteriore spazio di deposito. Questa soluzione abitativa è ideale per chi cerca comfort e praticità in una delle località più apprezzate della riviera romagnola.

Per maggiori informazioni chiama 0544.986427 - 393.9205189 oppure manda una mail a rahe1

Mostra tutto

Nelle vicinanze

Trasporto pubblico Trasporto pubblico
Cervia-Milano Marittima
Cervia-Milano Marittima
290 m
Cervia Centro
Cervia Centro
250 m
Cervia Milazzo
Cervia Milazzo
810 m
Ricariche auto elettriche Ricariche auto elettriche
Eneldrive XXV Aprile
110 m
Cervia Via Levico | EnelX
700 m
Cervia Centro Sportivo Liberazione | EnelX
960 m
Cervia Lungomare Gabriele D'Annunzio | EnelX
1,0 Km
Hotel Aurelia
1,2 Km
Scuole Scuole
Scuola Media Ressi Gervasi
160 m
Scuola di Musica Gioacchino Rossini
250 m
Scuola Primaria "Giovanni Pascoli"
280 m
Scuola Primaria Statale "Aldo Spallicci"
660 m
Scuole
690 m
Farmacia Farmacia
Farmacia Bedeschi
380 m
Farmacia della Pieve
600 m
Farmacia Comunale n.2
720 m
Farmacia Madonna del Mare
760 m
Farmacia
830 m
Ospedali Ospedali
San Giorgio
370 m
Supermercati Supermercati
Coop viale Roma
370 m
Conad Cervia
410 m
Eurospin
550 m
Momo Spin
580 m
Coop
800 m
Negozi Negozi
Truky
410 m
Forno Valzania
650 m
Primo Sole Bimbi
1,6 Km
Joel India
1,6 Km
Bar Bar
Portò
460 m
Living Room
460 m
Abbey Road Café
1,0 Km
Bar Rinascita
1,1 Km
Just Café
1,2 Km
Ristoranti Ristoranti
La gastronomia Cervia Carni
140 m
Pizzeria Perugini Mirella
140 m
Osteria Il Cantinone
210 m
Osteria delle Mura
240 m
Trùcolo
270 m
Mostra tutto

Caratteristiche

Rif.:
61182661
Piano:
Basso di 2
Totale piani:
2
Box:
1
Balconi:
2
Camere da letto:
2
Mostra tutto
Prezzo Prezzo
€ 350.000
Rata mutuo Rata mutuo
€ 1.669 / mese
Spese annue Spese annue
€ 500
Proponi il tuo prezzoProponi il tuo prezzo
Immobile valutato con T·Valuta

Classe Energetica

Questo immobile è esente da classe energetica
Anno di costruzione:
1998
Riscaldamento:
Autonomo
Tipo impianto:
A radiatori
Tipo alimentazione:
Metano

Ti interessa visionare l'immobile?

Fissa un appuntamento  Fissa un appuntamento

Richiedi informazioni

Clicca su Leggi per aprire l'informativa
* Questi campi sono obbligatori

Calcola il tuo mutuo

Semplice e senza impegno
Anticipo

( % )
Mutuo

( % )

pochi semplici passi

inserisci i tuoi dati
Questionario completato
Grazie per aver richiesto un appuntamento senza impegno con un nostro Consulente del Credito e Assicurativo.

Hai inserito correttamente tutti i dati necessari e a breve riceverai una e-mail con un link da convalidare per inviare i tuoi dati.
Affiliato
Studio Cervia Srl
Via Tritone, 11 48015 Cervia (RA)

Il nostro staff


  • Giovanni Facchinetti
    Affiliato

  • Francesco Baldisserri
    Affiliato

  • Alberto Cantoni
    Collaboratore

  • Matteo Di Marco
    Collaboratore

  • Adnana Mariuca Lazar
    Coordinatrice

  • Lorenzo Milzoni
    Collaboratore

  • Teodora Mustetanu
    Collaboratrice
Via Tritone, 11 48015 Cervia (RA)
Zona: Pinarella-Cervia-Tagliata
Mostra su mappa
Orari: Lunedì - Venerdì 09.00/13.00 - 15.00/19.30; Sabato 09.00/13.00 - 15.00/18.30; Domenica e festivi su appuntamento.
Affiliato
Studio Cervia Srl
Via Tritone, 11 48015 Cervia (RA)

2026 Tecnocasa Franchising S.p.A. - P. IVA 08365160152 - Via Monte Bianco 60/A 20089 Rozzano (MI). Ogni agenzia ha un proprio titolare ed è autonoma. Privacy policy | Policy utilizzo | Cookie policy