Villa a schiera in vendita

Cervia, Viale Tritone - Pinarella
€ 335.000
Prezzo aggiornato
4 locali 4 locali
128 Mq 128 Mq
2 bagni 2 bagni

Villa a schiera in vendita

Cervia, Viale Tritone - Pinarella

Descrizione annuncio

PINARELLA

In zona centrale villetta a schiera ad angolo con ingresso indipendente e giardino privato.

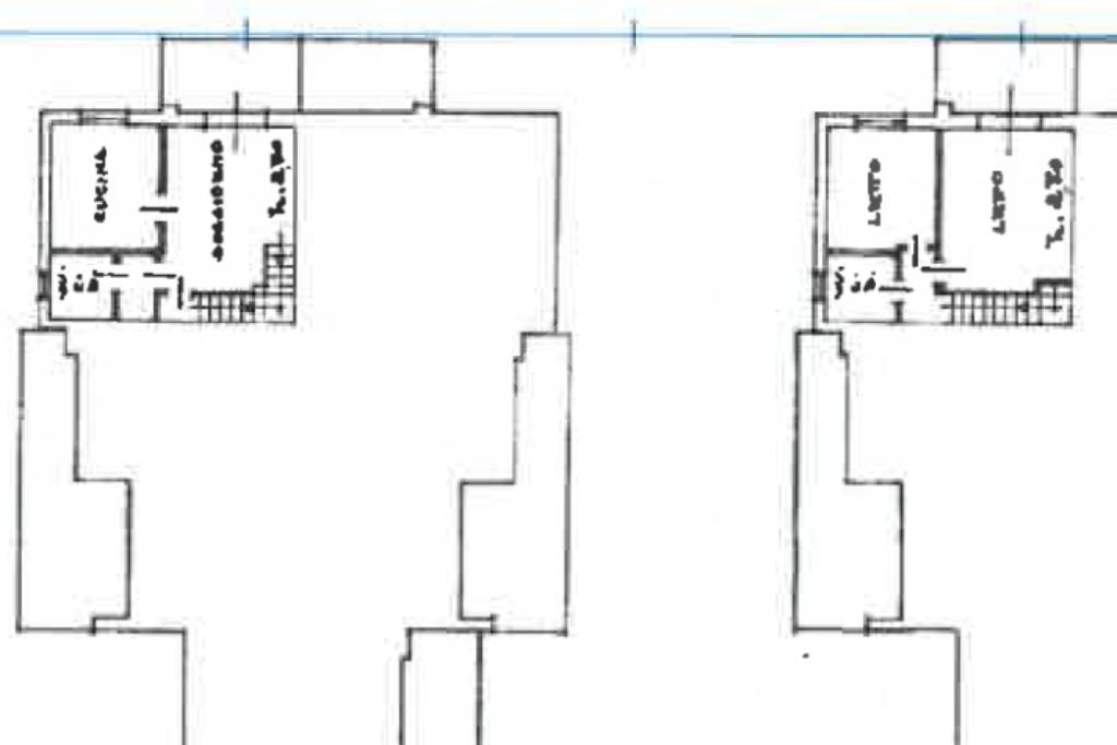
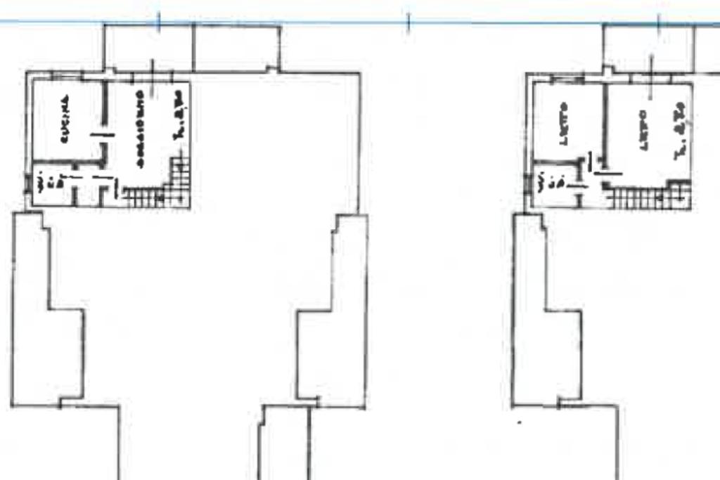
L'immobile si sviluppa su quattro livelli, offrendo ampi spazi e la possibilità di personalizzazione grazie alla necessità di ristrutturazione.

Al piano terra è presente un ingresso comodo e funzionale.
Salendo al piano primo, la zona giorno comprende un luminoso soggiorno, una cucina abitabile ed un bagno finestrato.
Al secondo piano due camere da letto ed un ulteriore bagno compongono la zona notte.

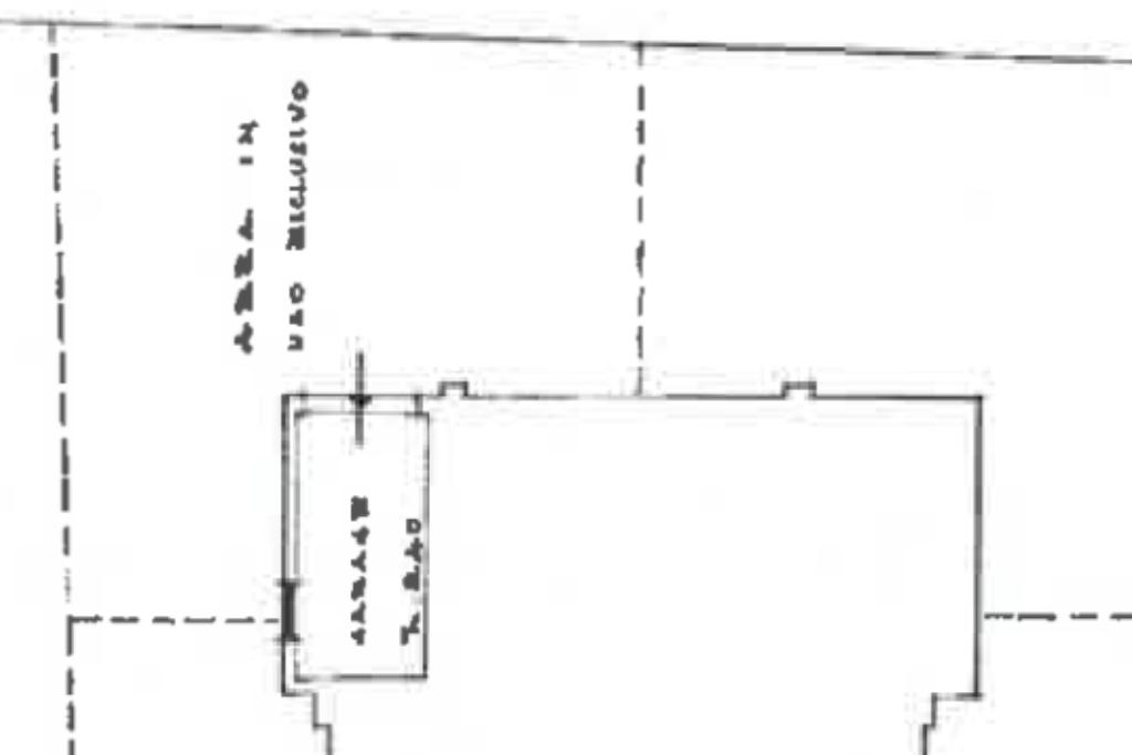
Completano la proprietà una tavernetta al piano interrato collegata direttamente con l'abitazione ed un garage al piano terra, spazi versatili che possono essere adattati a diverse esigenze.

Questa soluzione rappresenta un'opportunità per chi desidera vivere in una zona tranquilla, senza rinunciare alla vicinanza ai servizi e al mare.

Per magggiori informazioni chiama 0544.986427 - 340.1287078 oppure manda una mail a rahe1

Mostra tutto

Nelle vicinanze

Trasporto pubblico Trasporto pubblico
Cervia-Milano Marittima
Cervia-Milano Marittima
2,3 Km
Pinarella Deledda Ferrara
Pinarella Deledda Ferrara
1,3 Km
Cervia Milazzo
Cervia Milazzo
1,8 Km
Ricariche auto elettriche Ricariche auto elettriche
Cervia Montale | EnelX
130 m
Cervia Piazzale Val d'Isère | EnelX
830 m
Cervia Deledda | EnelX
950 m
Cervia Centro Sportivo Liberazione | EnelX
1,3 Km
Cervia Via Levico | EnelX
1,6 Km
Scuole Scuole
Scuola Primaria Statale "Aldo Spallicci"
1,6 Km
Scuola Media Ressi Gervasi
2,0 Km
Scuola Primaria Statale "A. Manzi"
2,1 Km
Scuola di Musica Gioacchino Rossini
2,4 Km
Scuola Primaria "Giovanni Pascoli"
2,4 Km
Farmacia Farmacia
Farmacia Comunale n.1
110 m
Farmacia Madonna del Mare
1,5 Km
Farmacia
1,7 Km
Farmacia della Pieve
2,5 Km
Farmacia Bedeschi
2,5 Km
Ospedali Ospedali
San Giorgio
2,5 Km
Supermercati Supermercati
Conad Pinarella
150 m
Conad
190 m
Eurospin
1,8 Km
Momo Spin
1,8 Km
Conad Cervia
1,8 Km
Negozi Negozi
Truky
2,5 Km
Forno Valzania
2,7 Km
Negozi
2,7 Km
Bar Bar
Nuovo fiore
560 m
Club 99
1,0 Km
Just Café
1,4 Km
Al KM175
2,2 Km
Bar Pasticceria Ketty
2,4 Km
Ristoranti Ristoranti
Pasta fresca Il mattarello
70 m
full moon
260 m
Da Luciano
420 m
Tipiko
660 m
Bagno Pineta 120
670 m
Mostra tutto

Caratteristiche

Rif.:
61142601
Piano:
Su più livelli di 4
Totale piani:
4
Box:
1
Balconi:
2
Camere da letto:
2
Mostra tutto
Prezzo Prezzo
€ 335.000
Rata mutuo Rata mutuo
€ 1.556 / mese
Spese annue Spese annue
€ 0
Proponi il tuo prezzoProponi il tuo prezzo
Immobile valutato con T·Valuta

Classe Energetica

Questo immobile è esente da classe energetica
Anno di costruzione:
1981
Riscaldamento:
Autonomo
Tipo impianto:
A radiatori
Tipo alimentazione:
Metano

Prezzo ridotto di €1 (3%%)

Ti interessa visionare l'immobile?

Fissa un appuntamento  Fissa un appuntamento

Richiedi informazioni

Clicca su Leggi per aprire l'informativa
* Questi campi sono obbligatori

Calcola il tuo mutuo

Semplice e senza impegno
Anticipo

( % )
Mutuo

( % )

pochi semplici passi

inserisci i tuoi dati
Questionario completato
Grazie per aver richiesto un appuntamento senza impegno con un nostro Consulente del Credito e Assicurativo.

Hai inserito correttamente tutti i dati necessari e a breve riceverai una e-mail con un link da convalidare per inviare i tuoi dati.
Affiliato
Studio Cervia Srl
Via Tritone, 11 48015 Cervia (RA)

Il nostro staff


  • Giovanni Facchinetti
    Affiliato

  • Francesco Baldisserri
    Affiliato

  • Alberto Cantoni
    Collaboratore

  • Matteo Di Marco
    Collaboratore

  • Adnana Mariuca Lazar
    Coordinatrice

  • Lorenzo Milzoni
    Collaboratore

  • Teodora Mustetanu
    Collaboratrice
Via Tritone, 11 48015 Cervia (RA)
Zona: Pinarella-Cervia-Tagliata
Mostra su mappa
Orari: Lunedì - Venerdì 09.00/13.00 - 15.00/19.30; Sabato 09.00/13.00 - 15.00/18.30; Domenica e festivi su appuntamento.
Affiliato
Studio Cervia Srl
Via Tritone, 11 48015 Cervia (RA)

2026 Tecnocasa Franchising S.p.A. - P. IVA 08365160152 - Via Monte Bianco 60/A 20089 Rozzano (MI). Ogni agenzia ha un proprio titolare ed è autonoma. Privacy policy | Policy utilizzo | Cookie policy